首页
关于我们
公司简介
企业文化
团队风采
组织结构
荣誉资质
家与未来
设计师团队
产品中心
轻钢别墅系列
智能整装系列
艺术背景系列
园林景观系列
服务中心
服务攻略
建筑园林设计
室内装潢设计
常见问题
4S服务
售后服务
资讯中心
新闻中心
行业资讯
视频资讯
联系我们
合作共赢
VR线上展厅
首页
关于我们
产品中心
服务中心
资讯中心
联系我们
VR线上展厅
效果图
廊架系列
product
产品中心
Light steel villa
轻钢别墅系列
Intelligent assembly
智能整装系列
Artistic background
艺术背景系列
Outdoor
园林景观系列
首页
>
产品中心
>
轻钢别墅系列
>
中式风格轻钢别墅
>
查看详情
Light steel villa
轻钢别墅系列
Intelligent assembly
智能整装系列
Artistic background
艺术背景系列
Outdoor
园林景观系列
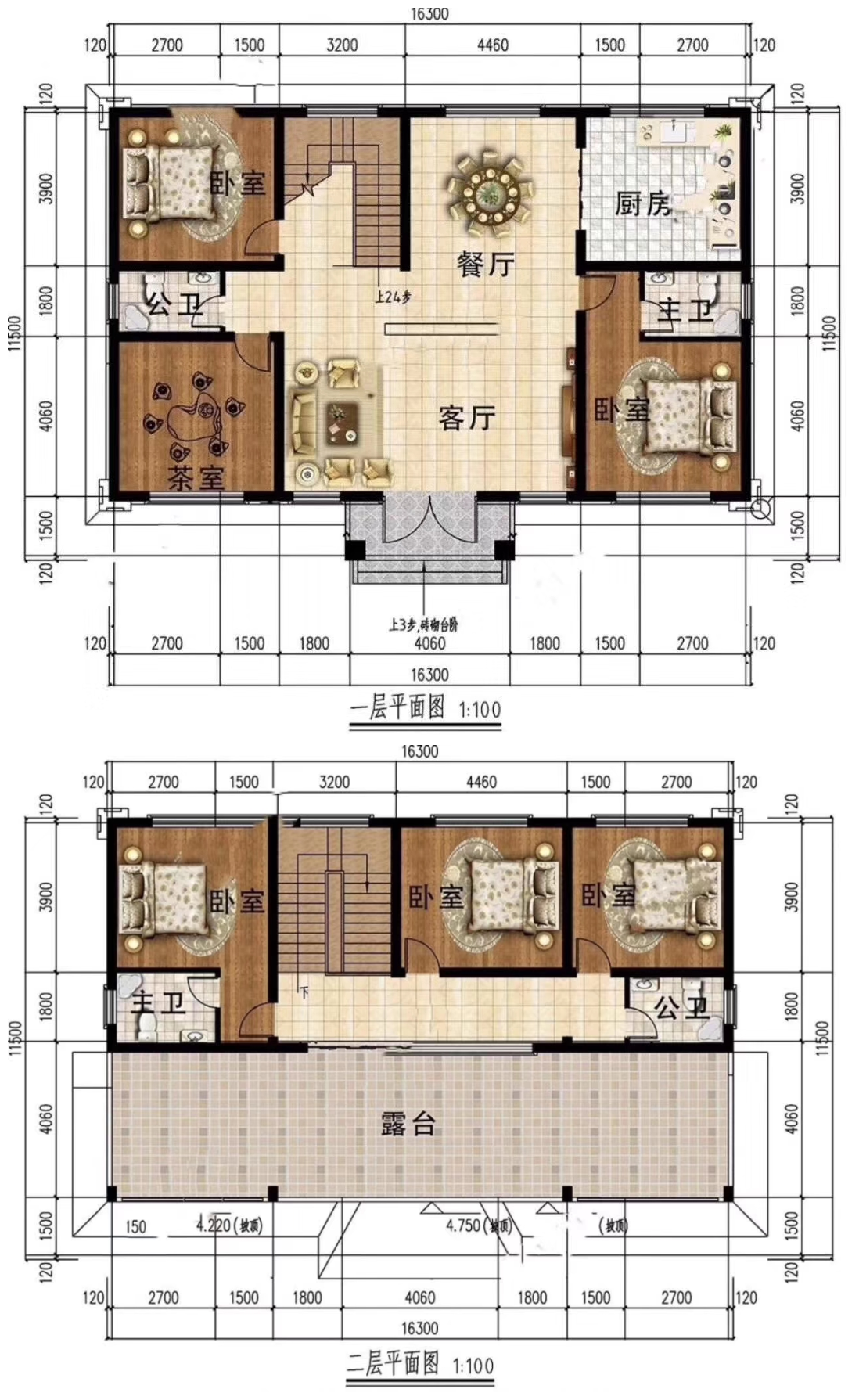
新中式风格两层轻钢别墅
本户型为一层四合院轻钢别墅中式轻钢别墅,风味独特,别具一格
01
效果图
02
拥有产品设计团队 用心服务
提供适合您的产品配套方案
03
3D全景看房
拥有产品设计团队 用心服务
提供适合您的产品配套方案
04
轻钢别墅结构体系
外墙采用钢骨架内填玻璃丝绵毡,外贴挤塑板保温层, 内墙采用钢骨架内填玻璃丝绵毡,双层石膏板
整体为轻钢结构,屋面沥青瓦+卷材防水(材料可选),木塑 挂板复合保温外墙(材料可选)实木内墙(材料可选),铝合 金门窗(材料可选)。